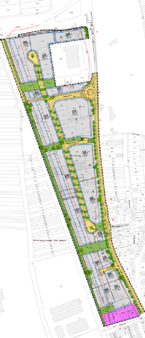
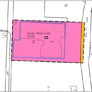
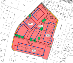
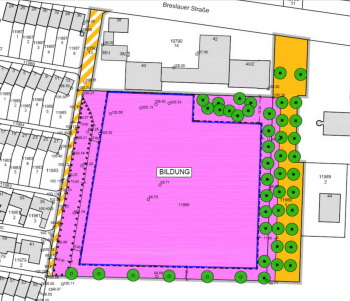
Rechtskräftige Bebauungspläne der Kernstadt
Auf dieser Seite finden Sie die rechtskräftigen Bebauungspläne der Kernstadt ab dem Jahr 2002.
Die aufgelisteten Bebauungspläne sowie die rechtskräftigen Bebauungspläne älteren Datums können zu den jeweiligen Öffnungszeiten beim Amt für Baurecht und Denkmalschutz eingesehen und beim Amt für Vermessung, Bodenordnung und Geoinformation gegen eine entsprechende Gebühr erworben werden.













































